![]() |
Banca di problemi del RMTgp108-it |
|
Envoyer une remarque ou une suggestion
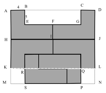
Di un rettangolo sul quale sono disposti 6 pezzi identici a forma di L, dei quali sono note due dimensioni, determinare le dimensioni e l’area della parte non ricoperta.

Analisi a priori:
- Comprendere dall’osservazione, o attraverso un ritaglio analogo a quello indicato in figura, che il lato FI deve misurare 5 cm, altrimenti non si potrebbero disporre i 6 pezzi del rettangolo così come sul disegno.

- Osservare che si può trovare la lunghezza AM del lato verticale del rettangolo: guardando i due pezzi a forma di L giustapposti in basso nella figura, si constata che FI = 5 cm, da cui AH = 10 cm e se ne deduce che questo lato misura: 10 + 10 + 5 = 25 cm.
- Rendersi conto che sul lato orizzontale AD si conoscono solo le due lunghezze di 4 cm, mentre resta sconosciuta la lunghezza EF. Indichiamo con l la sua misura in cm.
- Osservare che si può esprimere questa misura in due modi differenti: da una parte, in alto, AD di scompone in due lunghezze di 4 cm e in due lunghezze EF, da cui una misura di 4 + l + l + 4; dall’altra parte in basso, KL si scompone in quattro lunghezze di 4 cm e in una lunghezza uguale a EF, da cui si ha una misura di 4 + 4 + l + 4 + 4.
- Ricavare dall’uguaglianza delle due espressioni che l = 8 cm. Così il lato orizzontale misura 24 cm.
Oppure
- Cercare di disegnare pezzi più grandi di forme identiche e accorgersi che c’è una sola possibilità perché le lunghezze di AB e di EB sono fissate: la lunghezza l deve essere il doppio sia il doppio della lunghezza del lato AB.
- Per determinare l’area della parte del rettangolo non ricoperta dai sei pezzi, considerare che essa è la somma delle aree del rettangolo BCGE e dei due rettangoli bianchi KMSR e LNPQ: dopo aver trovato le lunghezze, ciò porta ad ottenere (5 x 16 + 2 x 5 x 4) cm2, cioè 120 cm2.
Oppure
- Osservare che essa corrisponde alla differenza tra l’area di tutto il rettangolo 24 x 25 = 600 cm2 e l’area dei sei pezzi. L’area di ciascun pezzo è: (4 x 5) + (5 x 12) = 80 cm2. I sei pezzi hanno quindi un’area di 80 x 6 = 480 cm2. L’area della parte bianca è pertanto: 600 – 480 = 120 cm2.
Punteggi attribuiti su 1071 classi di 15 sezioni:
| Categoria | 0 | 1 | 2 | 3 | 4 | Nb.classi | Media |
|---|---|---|---|---|---|---|---|
| Cat 8 | 84 (11%) | 82 (11%) | 165 (22%) | 228 (31%) | 183 (25%) | 742 | 2.46 |
| Cat 9 | 11 (6%) | 14 (8%) | 41 (24%) | 53 (31%) | 51 (30%) | 170 | 2.7 |
| Cat 10 | 15 (9%) | 16 (10%) | 30 (19%) | 53 (33%) | 45 (28%) | 159 | 2.61 |
| Totale | 110 (10%) | 112 (10%) | 236 (22%) | 334 (31%) | 279 (26%) | 1071 | 2.52 |
| Si ricorda che il problema è stato affrontato nelle condizioni particolari del RMT: intera classe, allievi in completa autonomia, da 5 a 7 problemi da risolvere, un solo foglio risposta per problema. | |||||||
Secondo i criteri dell’analisi a priori: